Premierea concursului CASA mică - Casa CUIB, Anuala de arhitectură 2020 „Arhitectura fără vârstă”

Premierea concursului CASA mică - Casa CUIB, Anuala de arhitectură 2020 „Arhitectura fără vârstă”
Urmărind cu consecvență contextul architectural actual și proiectele de arhitectură care folosesc materiale ceramice, wienerberger România a susținut evenimentul concurs CASA MICĂ - CASA CUIB.
Aflat la cea de-a patra ediție, acest eveniment face parte din Anuala de arhitectură 2020 „Arhitectura fără vârstă” a filialei teritoriale Dunărea de Jos a Ordinului Arhitecților din România. În calitate de partener al Anualei, în cadrul ediției 2020, am avut onoarea de a premia proiectul elaborat de arh. Romeo Bigan, nominalizat în secțiunea 5 / arhitectura prin design.
Denumirea metaforică de casa “cuib” se evidențiază din planul de situație, unde sunt vizibile închiderile opace pe limita de proprietate, obtinându-se o incintă protejată față de exterior. Mai mult decât atât, caracterul introvertit al spațiilor se obține și prin configurarea parterului în formă de “U”, în jurul unei curți interioare.
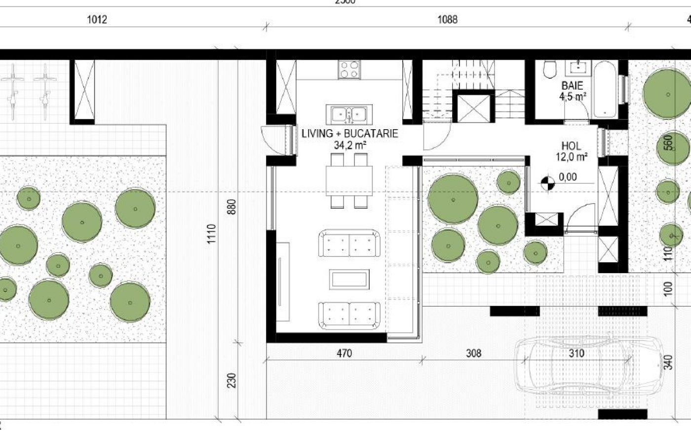
Această vilă de mici dimensiuni a avut ca date de temă încadrarea în suprafața desfașurată de 100 mp și amplasarea pe un teren cu dimensiunile 25x11 m. Amprenta la sol a construcției este de 65 mp.
Din punct de vedere funcțional, parterul include livingul cu bucătărie deschisa, camera de baie și zonă de circulație cu scară către etaj. Spre latura de est a livingului s-a propus o soluție vitrată de perete cortină, cu luminator într-o singură apă, conferind spațiului multă luminozitate și o perspectivă deschisă către curtea interioara și volumetria nivelului superior. La etaj regăsim zona de noapte - dormitorul matrimonial cu baie proprie.
Arhitectura modernă este subliniată atât prin configurarea volumetrică de tip cubist, cât și de textura și culorile finisajelor exterioare. Volumul alb al etajului pare că plutește peste baza solidă a parterului, fiind ieșit în consolă. Se creează un contrast interesant între albul imaculat și rece al tencuielii exterioare și placarea din cărămidă aparentă ce conferă multă caldură registrului parter. De asemenea, stâlpii masivi finisați cu plăcuțe ceramice au rol funcțional: de direcționare a vizitatorilor către curte, de compartimentare a locului de parcare, dar și structural.
Cărămida este un material natural, durabil și constituie un element de bază pentru infinite compoziții. În cazul acestui proiect s-a optat pentru utilizarea unui model de montaj la jumatate de placă, cu textura și format în stil modern. Produsele ceramice Terca oferă un puternic impact vizual și creează spații funcționale și armonioase, fiind ușor de încadrat în orice decor. Durabilitatea și frumusețea naturală a cărămizilor și placajului ceramic Terca imprimă un caracter aparte oricărei amenajări. Dincolo de asta, unul dintre principalele atuuri ale placajului klinker este versatilitatea, capacitatea de adaptare în stiluri arhitecturale variate, datorită portofoliului bogat de 118 texturi și culori.
Fațadele sunt ritmate de goluri ample, dreptunghiulare, de 2,70 x 1m, iar tâmplăria minimalistă, din aluminiu este dispusă uneori în retragere față de planul acestora.
Confortul interior al locuinței este completat de amenajarea exterioară a terenului gândit creativ - cu zonă de luat masa în aer liber, zonă de recreere și multe plante și arbusti de talie înaltă și medie pentru prezența umbrei în sezonul cald. Pentru terase s-a utilizat atât pavaj ceramic pentru zona pietonală, cât și pavaj din beton vibropresat pentru platforma auto. Portofoliul de dale și pavaje Semmelrock oferă o mare libertate de expresie și este o sursă prețioasă de idei în ceea ce privește crearea unui design unic al grădinii. Proiectate corespunzator și puse în operă în condiții profesionale, atât pavajul vibropresat, cât și cel ceramic pot fi combinate pentru a crea efecte vizuale deosebite. Mai mult decât atât, aceste produse oferă avantaje ecologice semnificative: permit solului să respire și asigură un drenaj corespunzător al apei.
În interior, o monumentală arhitectură a volumelor și texturilor, în exterior o demonstrație a creativității și inovatiei creatoare - casa cuib ne demonstrează cum o cladire poate deveni, simultan, inspirație și inovație.